Como deve ser localizada a zona livre exigida na parte frontal da sanita? De topo com a sanita ou de forma perpendicular ao eixo desta?
No ponto 2.9.4 exige-se que as sanitas acessíveis disponham de zonas livres.
Na solução corrente (alínea 2) devem existir zonas livres de um dos lados e na parte frontal; em casos onde seja previsível um uso frequente por pessoas com mobilidade condicionada (alínea 4) estas devem existir em ambos os lados e na parte frontal.
As medidas desta zona livre (também chamada zona de permanência, no título da Secção 4.1) são especificadas no ponto 4.1.1. Trata-se, basicamente, de um rectângulo com as medidas mínimas de 1,20m x 0,75m.
No caso das sanitas, estas zonas livres destinam-se a permitir o estacionamento de uma cadeira de junto à sanita, de forma a permitir ao seu utilizador a transferência (i.e., a passagem da cadeira parta a sanita, e vice-versa).
Existem várias formas de efectuar esta transferência. Cada pessoa usa a forma que consegue (de acordo com as competências motoras de que dispõe) e a que lhe proporciona mais segurança e conforto. A existência de mais de uma zona livre junto à sanita alarga o leque de formas possíveis de transferência para essa sanita.
As zonas livres laterais devem ser colocadas junto à parte da lateral da sanita, de forma paralela ao seu eixo longitudinal.
Por seu lado, a zona livre a localizar na parte frontal da sanita deve ter o seu lado mais comprido perpendicular ao eixo da sanita.
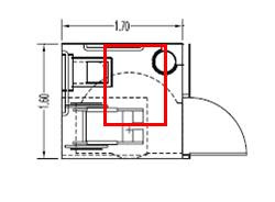
Embora as normas não o especifiquem, podemos deduzi-lo da ilustração do ponto 2.9.5, alínea 3). Trata-se de uma sanita instalada ao canto, que dispõe de apenas uma zona livre lateral, e que portanto deve cumprir o disposto no ponto 2.9.4 alínea 2). Nota-se que neste caso a zona livre frontal (que introduzimos a vermelho) só cabe se estiver perpendicular ao eixo da sanita.
No ponto 2.9.4 exige-se que as sanitas acessíveis disponham de zonas livres.
Na solução corrente (alínea 2) devem existir zonas livres de um dos lados e na parte frontal; em casos onde seja previsível um uso frequente por pessoas com mobilidade condicionada (alínea 4) estas devem existir em ambos os lados e na parte frontal.
As medidas desta zona livre (também chamada zona de permanência, no título da Secção 4.1) são especificadas no ponto 4.1.1. Trata-se, basicamente, de um rectângulo com as medidas mínimas de 1,20m x 0,75m.
No caso das sanitas, estas zonas livres destinam-se a permitir o estacionamento de uma cadeira de junto à sanita, de forma a permitir ao seu utilizador a transferência (i.e., a passagem da cadeira parta a sanita, e vice-versa).
Existem várias formas de efectuar esta transferência. Cada pessoa usa a forma que consegue (de acordo com as competências motoras de que dispõe) e a que lhe proporciona mais segurança e conforto. A existência de mais de uma zona livre junto à sanita alarga o leque de formas possíveis de transferência para essa sanita.
As zonas livres laterais devem ser colocadas junto à parte da lateral da sanita, de forma paralela ao seu eixo longitudinal.
Por seu lado, a zona livre a localizar na parte frontal da sanita deve ter o seu lado mais comprido perpendicular ao eixo da sanita.
Embora as normas não o especifiquem, podemos deduzi-lo da ilustração do ponto 2.9.5, alínea 3). Trata-se de uma sanita instalada ao canto, que dispõe de apenas uma zona livre lateral, e que portanto deve cumprir o disposto no ponto 2.9.4 alínea 2). Nota-se que neste caso a zona livre frontal (que introduzimos a vermelho) só cabe se estiver perpendicular ao eixo da sanita.
Nestas condições o topo da zona livre deve coincidir com a parede na qual se encontra fixa a barra de apoio lateral.
PHG 7MAI2007
Agradecimentos: João Branco Pedro
PHG 7MAI2007
Agradecimentos: João Branco Pedro
Sem comentários:
Enviar um comentário